• Office

8 Elmwood, Chineham Park, Basingstoke, Hampshire

RG24 8WG

Size 2,345 to 4,858sq ft

Rent £22 - £25 Per Sq Ft

SELF-CONTAINED OPTION AVAILABLE

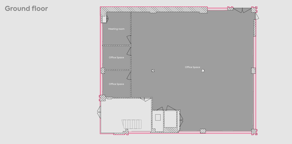
  • Partitioned offices and meeting rooms
  • Functional space with newly fitted kitchen
  • New VRF heating and cooling installed on the Ground floor
  • Excellent parking ratio of 1:195
Newly refurbished accommodation at 8 Elmwood is located at the heart of Chineham Park. It is a two minute walk from The Exchange, co-working space and café.
Property type Office
Size 2,345 to 4,858sq ft
Tenure To Let
Rent £22 - £25 Per Sq Ft
Business rates £8.30 per sq ft
Service charge £7.96 per sq ft
Energy performance rating This property has been graded as C/70
Estate charge £1.76 per sq ft
Terms A new effective Full Repairing and Insuring lease for terms to be agreed.
Name Size - SqFt Size - SqM Availability
1st 2,345 217.86 Coming Soon
Ground 2,513 233.47 Available
Chineham Park is situated in a strategic location immediately to the North of Basingstoke and the town's ring road and adjacent to the A33 (Reading). The park is therefore well connected for access to both the M3 and M4 motorways at Junctions 6 and 11 respectively.

A complimentary shuttle bus service runs every 15 minutes between Chineham Park, the train station and Basingstoke town centre. n
By Car
Basingstoke - 3 miles (6 mins) nSouthampton - 27 miles (28 mins)
Reading - 12 miles (20 mins)
London - 45 miles (50 mins)

By Trai

London Waterloo - 45 mins
Southampton Airport - 22 mins
Reading - 20 mins
Newly refurbished accommodation at 8 Elmwood is located at the heart of Chineham Park. It is a two minute walk from The Exchange, co-working space and café.
Property type Office
Size 2,345 to 4,858sq ft
Tenure To Let
Rent £22 - £25 Per Sq Ft
Business rates £8.30 per sq ft
Service charge £7.96 per sq ft
Energy performance rating This property has been graded as C/70
Estate charge £1.76 per sq ft
Terms A new effective Full Repairing and Insuring lease for terms to be agreed.
Name Size - SqFt Size - SqM Availability
1st 2,345 217.86 Coming Soon
Ground 2,513 233.47 Available
Chineham Park is situated in a strategic location immediately to the North of Basingstoke and the town's ring road and adjacent to the A33 (Reading). The park is therefore well connected for access to both the M3 and M4 motorways at Junctions 6 and 11 respectively.

A complimentary shuttle bus service runs every 15 minutes between Chineham Park, the train station and Basingstoke town centre. n
By Car
Basingstoke - 3 miles (6 mins) nSouthampton - 27 miles (28 mins)
Reading - 12 miles (20 mins)
London - 45 miles (50 mins)

By Trai

London Waterloo - 45 mins
Southampton Airport - 22 mins
Reading - 20 mins
Viewing & Further Information

For further information, or if you would like to arrange a viewing, please contact our agents

Anti money laundering

To comply with Anti Money Laundering regulations, Hollis Hockley undertake ID checks for all successful purchasers and tenants where legislation requires us to do so.